先看工地,再装修,最稳妥!年底最后一次看工地活动报名中

准备装修了不知如何下手,装修材料应该怎么选,装修师傅的手艺怎么样?

跟着南京江水平装修的客服和师傅们一起参观现场实地了解吧!先学习,再装修,最稳妥!

2019-01-09-215202

这次看工地活动的时间定在1月26日(周六),小区位于北京东路51号公教一村41栋,房子在一楼(地铁3号线鸡鸣寺站下,4号出口出,步行260米即到,非常方便)。

2019-01-09-215202_0001

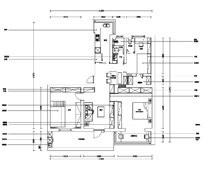
这是房子的平面布置图

工地目前是木工师傅在做吊顶和柜子,现场瓦工全部结束,全屋地砖(卧室地板砖菱形铺贴),厨房砖夹橱柜,阳台洗衣机柜,有瓷砖背景墙,院墙是文化砖,院子地面原石砖,大家现场可以看到水电,瓦工和木工的施工细节和工艺。

2019-01-09-215202_0003 2019-01-09-215202_0002

记得从去年到现在我们一共举办了10多次看工地活动,业主们都反馈这样面对面的现场见面沟通非常好;对于没怎么接触过装修的业主们,看装修工地能更直观的了解江水平的施工工艺和材料;平时不了解的装修问题直接现场咨询,报价也能更直接的沟通了解。工地上或多或少都有一些主材已经入驻,大家还能实地了解主材的搭配和选购技巧。

看工地有惊喜!

惊喜一:考虑到很多已量房业主会现场签约定开工,凡是当天淘宝拍定金现场签约的业主,都可以返现50元 ;(定金开工之前可以无条件退)

惊喜二:签约业主可以得到合作主材商家提供的满额现金券;封闭阳台,瓷砖,美缝,地板,木门,集成吊顶,墙纸窗帘,灯具,开关五金,洁具,淋浴房,家具(沙发床茶几等)都有,咱们可以保留好优惠券等来年一站式主材团购时叠加使用。

惊喜三:当天签约业主均可以现场抽奖;

奖品有潜水艇地漏,美缝,欧雅背景墙墙纸,百叶窗窗帘,特略台灯,帝安尼品牌板凳,德国科诺地板,恒洁角阀,帅康防烟宝,鹰牌瓷砖,铭轩石材卫生间台面,飞利浦筒灯,美的电水壶,大奖是价值1000元的60支长绒棉高端四件套一套!

2019-01-09-215202_0004

2019-01-09-215202_0005

2019-01-09-215202_0006

活动时间:1月26日周日 上午9点半—-下午3点

报名截止:1月25日下午5点之前,找客服报名,报名人数不限定,大家在不同时间段过来就好

客服QQ微信:427719302

工地地址:北京东路51号公教一村41栋

大概流程:

1,现场参观,了解施工工艺和细节,参考合适装修布局

2,现场提供江水平2018年报价,装修合同,主材顺序等资料,面对面沟通

3,装修疑问,装修名词,砖夹橱柜细节,施工工艺现场解答(客服师傅工程部均在现场)

现场提供:活动地点在工地,业主来往时间不固定,午饭要麻烦大家自行解决,现场给大家准备了矿泉水,小面包等干粮。

往返路线:

坐车:乘坐地铁3号线至鸡鸣寺站下,4号出口出,步行260米即到,非常方便

开车:导航公教一村即可,考虑到老小区停车不方便可以选择地铁出行