南京阳光聚宝山庄,138平暖暖地中海装修风 独特细节暖透人心 。

  【户型】:3-1-1

  【面积】:138平方

  【风格】:纯正地中海

  【施工】:江水平

  这次是第二次装修了,但是还是犯了很多错误。主要是第一次装修是随便装装的,没花多少心思,装的东西也比较少,这次装修上了中央空调,暖气等以前没接触过的东西,结果就被坑了。这次告诉大家选择中央空调和暖气什么的不要迷信大公司,也不要在下班时间跟人家去谈。我们就是下班后去谈价格,结果时间晚了过意不去,稀里糊涂就签了合同,结果被狠狠的宰了一刀。

0001 0002

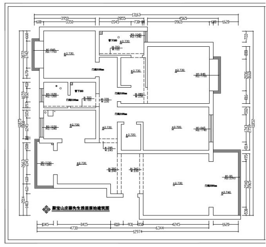
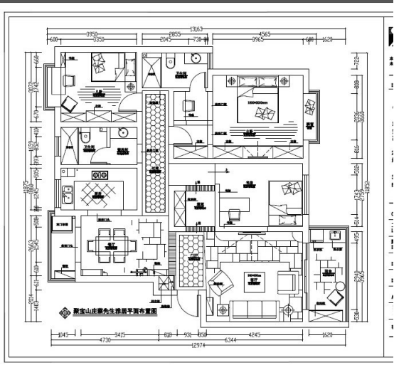
  因为此户型原始设计可能因为私密性考虑,进户看不见走廊,而我喜欢进户宽敞,因此和设计师讨论更改户型,但是因为聚宝的房子承重墙太多,厨房什么都不能改动成开放式。

  拆除施工

  5月6日,正式开工,先放鞭炮,然后砸钱墙

  这里告诉大家一个经验,买二手毛坯的时候要注意他的卫生间墙面是不是刷过油漆,我买的这个号称毛坯房原来卖家做过群租房,卫生间都刷了油漆,结果这些墙面都得砸掉,砸墙面后瓦工再粉起来都是钱

0003

水电施工

  5月22日,水电终于进场了。来的熊师傅居然很瘦,让我老婆觉得很惊讶,她以为熊师傅应该是很壮的那种。熊师傅虽然人瘦,但是干的活一点不马虎,很漂亮

  担心水管下水有噪音,在熊师傅的建议下另外买了隔音棉包上

  中途封闭了阳台和更换了所有卧室的窗户,因为聚宝山庄在玄武大道边上,担心晚上噪音大,特地更换了最新的断桥铝门窗。博诺尼门窗性价比不错,来看过的人都说质量没得说

0004 0005 0006

  瓦工施工

  6月4日瓦工进场,来的龚师傅居然是我的老乡,老乡见老乡两眼泪汪汪,听着家乡话觉得特别的亲切。这次因为是地中海风格,马可波罗诺贝尔神马的都没有合适的砖,于是把视线投向了专做仿古砖的长谷和芒果,结果更喜欢芒果家的瓷砖。但是那个价格确实高昂,大大超出了我的预算

  主卧卫生间的瓷砖是芒果家的彩岩系列,一开始是没有选择腰线的,想用四个颜色砖交替代替,因为造价实在太高,但交底的时候发现腰线用砖实在不好看,只好忍痛又购买了腰线,发现装修真是个无底洞啊

  芒果家的砖好看,但是贴起来很费功夫,两个卫生间的砖都是那种不规则的正方形,厨房更是10*10的小方砖,但龚师傅贴的很认真,很仔细,在贴砖过程中碰到一些问题都会及时与我沟通,很负责,绝对不是那种不管三七二十一只管施工进度的工人。一切都是像完美靠齐。厨房的小方砖很卡哇伊

0007 0008 0009 0010 0011 0012 0013

  马赛克铺贴好

0014 0015 0016 0017

  今天去房子打扫了一把,好累好累,不知道装修师傅每天是怎么过的,为了省钱,自己贴了地上保护膜,贴的很垃圾,但是真的很难贴啊

0017 0018 0019 0020

  木工施工

  木工中午进厂了,好多材料……

  小房间的柜子圆拱造型做好了,更新书房柜子

0021 0022 0023 0024 0025 0026 0027 0028 0029

  壁炉搞好了

  

毕业照

  入门玄关

0030

  餐厅吊顶

0031 0032

  餐厅

0033

  走廊过道

0034

  书房

0035 0036 0037

  我一直有个梦想,就是在家里的客厅搞个家庭影院,时不时的跟媳妇儿在家窝在沙发上看个电影,也算是一种小浪漫吧,不用出门还省钱!

  厨房的砖砌橱柜

0038 0039 0040

  卫生间

  0041 0042 0043

  阳台砖砌洗衣柜

0044

  木工做的仿壁龛,可以放一些工艺品是不是萌萌哒!

0045 0046 0047 0048

  书架做了拱形的造型是不是很漂亮!