南京夫子庙,111平二手房混搭装修日记,接地气的装修风格

  【小区】琵琶小区

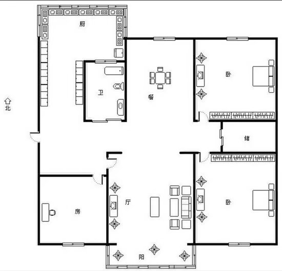
  【户型】3室2厅

  【面积】111

  【设计】自己喜欢的

  【风格】混搭

  【施工】江水平装修队

  0001

  

  上一张户型图,中介提供

  之前跟公婆分开住,怀孕住到一起才想到换一套3室的,然后就开始了漫长的看房路,不想离上班地方远,又不能离公婆家太远,新点的小区预算又不够,老小区又没有大点的户型。后来终于在政策出来前选到合适的房子。

  选择江水平主要是看中了砖体厨柜,后来证明选择没错,所有的师傅都很认真负责,整体还是很满意的

  手机里照片不多,房子没装之前惨不忍睹,前房主把房子餐厅跟客厅隔好加房间分成5户出租,来几张装修时的照片

 0002 0003 0004 0005 0006 0007

 

  平时带宝宝时间多,直接上毕业照,今天刚做完保洁,家里能看多了,家具沙发茶几等还没到货,门套也没安装,将就看看

 0010 0011 0012

  小房间,潘师傅打的电脑桌,实用为主

 0013

  储藏间

  0014 0015

  老公的电脑桌,潘师傅打造,后期上面的格档要装玻璃门,老公要放模型

  0016

  大房间,大小房间衣柜大小格式一样,个人感觉很实用

  0017 0018 0019

  厨房,砖夹橱柜感觉很实用,特地让瓦工王师傅做了防水,老公讲以后厨房可以直接用水冲洗

  0020 0021

  儿童房,胡师傅调的油漆色,希望小家伙会喜欢

  0022

  门厅,门左侧之前有个小门通往客厅,堵上后潘师傅又打了一竖排鞋柜

  0023 0024

  客厅、餐厅

  0025 0026

  卫生间