大厂新华四村54平装修毕业,南京装修案例!

【地址】:大厂新华四村

【户主】:SS

【面积】:54平

【风格】:多种风格混搭,就是没有风格

【设计】:自己

【施工】:江水平装修队

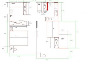
我们的房子是53.6平方,两室一厅,麻雀虽小五脏俱全啊,哈哈……偶自己画了个设计图(因为没有CAD,就用画图搞的,偶很聪明吧,哦呵呵)

2017-02-28-093504 2017-02-28-093512 2017-02-28-093520 2017-02-28-093530 2017-02-28-093536 2017-02-28-093540 2017-02-28-093544 2017-02-28-093550 2017-02-28-093556